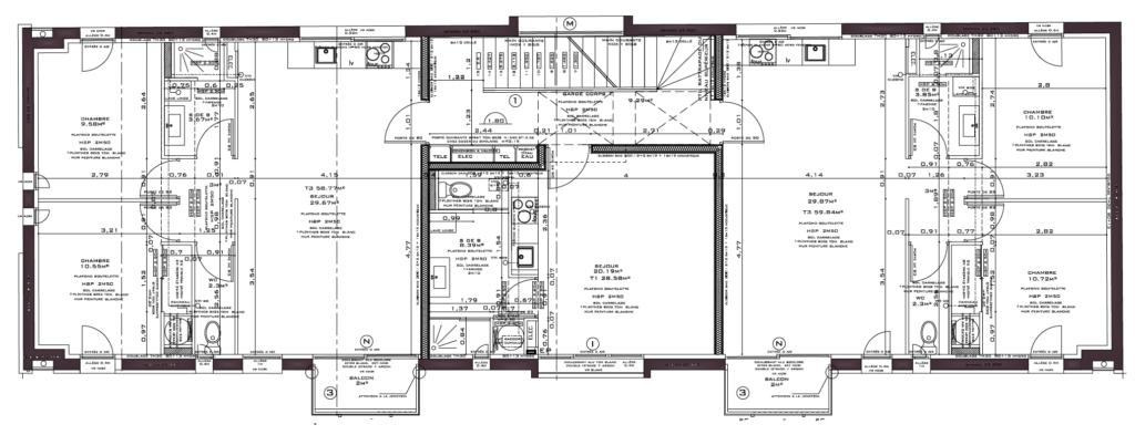
Résidence de 7 logements :
RDC : parking
R+1: 2 T3 et un studio
R+2: 2 T3
Combles : 2 studios

Résidence les sables
Collectif
Résidence de 7 logements :
RDC : parking
R+1: 2 T3 et un studio
R+2: 2 T3
Combles : 2 studios
